Terrain Costa Antigua 2833
260.000 €
Descubre THE ELYSIAN COLLECTION: el único nuevo proyecto en Caleta de Fuste, con espectaculares vistas al mar, diseño moderno, amplias terrazas, zonas comunes con piscina y todas las comodidades incluidas. Viviendas de 2 y 3 dormitorios ideales para vivir, descansar o invertir, desde 275.000 €. Entrega por fases a partir del primer trimestre de 2026.



260.000 €
Compra
Ref: 2833
Terrain avec vue sur la mer à vendre !
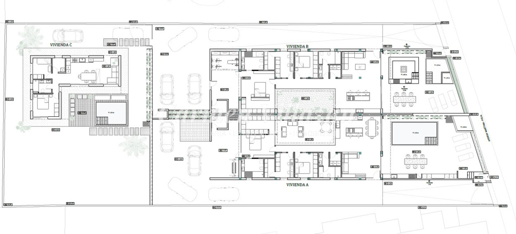
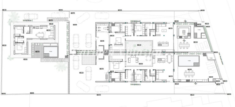
Situé à Costa Antigua, à seulement 15 minutes à pied du noyau touristique de Caleta de Fuste, ce magnifique terrain de 1 460 m² en zone urbaine résidentielle est proposé à la vente.
La propriété est vendue avec licence et projet approuvé pour la construction de 3 logements :
• Deux villas jumelées de plain-pied
• Un appartement indépendant avec accès privé
Une opportunité parfaite pour vivre en famille, pour combiner usage personnel et location longue durée, ou même comme investissement pour la location saisonnière.
Répartition des logements
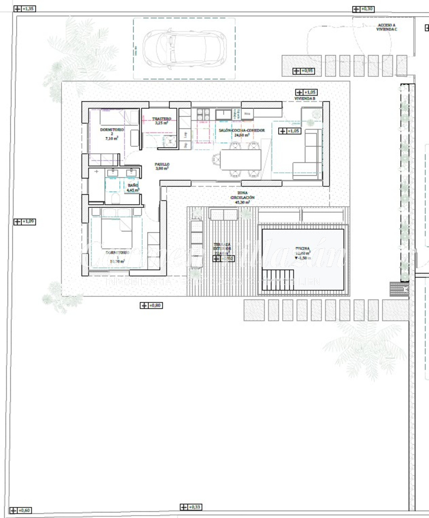
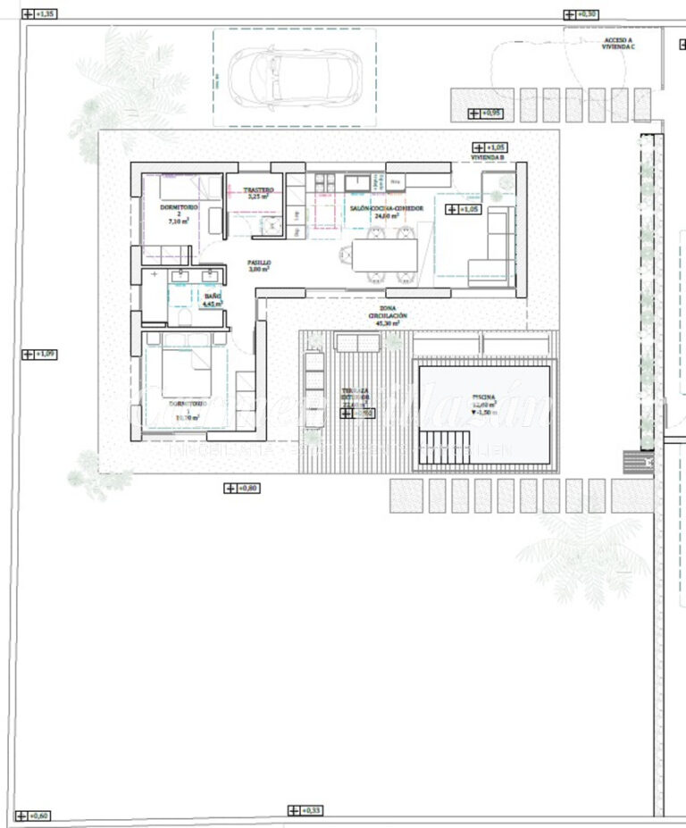
Villas jumelées (plain-pied)
Chaque villa comprend :
• Salon-salle à manger, 2 chambres, 2 salles de bains, WC, Salle de sport, Débarras et cellier, Patio intérieur, Terrasse, Piscine privée, Place de parking pour 2 voitures
Surface construite :
• Villa 1 : 150,80 m²
• Villa 2 : 145,70 m²
Appartement indépendant (plain-pied)
Comprend :
• Salon-salle à manger, 2 chambres, 1 salle de bain, Débarras, Zone de circulation avec accès indépendant, Terrasse, Piscine
Surface construite : 68,50 m²
Caractéristiques urbanistiques
• Zone urbaine - à usage résidentiel
• Constructible : 25%
Un investissement aux multiples possibilités
Parfait pour développer un projet familial, un complexe de location longue durée ou un investissement attrayant orienté vers la location saisonnière.
Un projet polyvalent et avec un grand potentiel dans l'une des zones les plus prometteuses de l'île !
Contactez-nous pour plus d'informations.
Características
Certificado energético
Comparte
¿DESEA SABER MÁS?



Terrain Costa Antigua 2833
260.000 €
Ref: 2833
Terrain avec vue sur la mer à vendre !
Situé à Costa Antigua, à seulement 15 minutes à pied du noyau touristique de Caleta de Fuste, ce magnifique terrain de 1 460 m² en zone urbaine résidentielle est proposé à la vente.
La propriété est vendue avec licence et projet approuvé pour la construction de 3 logements :
• Deux villas jumelées de plain-pied
• Un appartement indépendant avec accès privé
Une opportunité parfaite pour vivre en famille, pour combiner usage personnel et location longue durée, ou même comme investissement pour la location saisonnière.
Répartition des logements
Villas jumelées (plain-pied)
Chaque villa comprend :
• Salon-salle à manger, 2 chambres, 2 salles de bains, WC, Salle de sport, Débarras et cellier, Patio intérieur, Terrasse, Piscine privée, Place de parking pour 2 voitures
Surface construite :
• Villa 1 : 150,80 m²
• Villa 2 : 145,70 m²
Appartement indépendant (plain-pied)
Comprend :
• Salon-salle à manger, 2 chambres, 1 salle de bain, Débarras, Zone de circulation avec accès indépendant, Terrasse, Piscine
Surface construite : 68,50 m²
Caractéristiques urbanistiques
• Zone urbaine - à usage résidentiel
• Constructible : 25%
Un investissement aux multiples possibilités
Parfait pour développer un projet familial, un complexe de location longue durée ou un investissement attrayant orienté vers la location saisonnière.
Un projet polyvalent et avec un grand potentiel dans l'une des zones les plus prometteuses de l'île !
Contactez-nous pour plus d'informations.
Characteristics
Energy certificate
Share
YOU WANT TO KNOW MORE?



Terrain Costa Antigua 2833
260.000 €
Ref: 2833
Terrain avec vue sur la mer à vendre !
Situé à Costa Antigua, à seulement 15 minutes à pied du noyau touristique de Caleta de Fuste, ce magnifique terrain de 1 460 m² en zone urbaine résidentielle est proposé à la vente.
La propriété est vendue avec licence et projet approuvé pour la construction de 3 logements :
• Deux villas jumelées de plain-pied
• Un appartement indépendant avec accès privé
Une opportunité parfaite pour vivre en famille, pour combiner usage personnel et location longue durée, ou même comme investissement pour la location saisonnière.
Répartition des logements
Villas jumelées (plain-pied)
Chaque villa comprend :
• Salon-salle à manger, 2 chambres, 2 salles de bains, WC, Salle de sport, Débarras et cellier, Patio intérieur, Terrasse, Piscine privée, Place de parking pour 2 voitures
Surface construite :
• Villa 1 : 150,80 m²
• Villa 2 : 145,70 m²
Appartement indépendant (plain-pied)
Comprend :
• Salon-salle à manger, 2 chambres, 1 salle de bain, Débarras, Zone de circulation avec accès indépendant, Terrasse, Piscine
Surface construite : 68,50 m²
Caractéristiques urbanistiques
• Zone urbaine - à usage résidentiel
• Constructible : 25%
Un investissement aux multiples possibilités
Parfait pour développer un projet familial, un complexe de location longue durée ou un investissement attrayant orienté vers la location saisonnière.
Un projet polyvalent et avec un grand potentiel dans l'une des zones les plus prometteuses de l'île !
Contactez-nous pour plus d'informations.
Eigenschaften
Energieausweis
Aktie
SIE WOLLEN MEHR WISSEN?



Terrain Costa Antigua 2833
260.000 €
Ref: 2833
Terrain avec vue sur la mer à vendre !
Situé à Costa Antigua, à seulement 15 minutes à pied du noyau touristique de Caleta de Fuste, ce magnifique terrain de 1 460 m² en zone urbaine résidentielle est proposé à la vente.
La propriété est vendue avec licence et projet approuvé pour la construction de 3 logements :
• Deux villas jumelées de plain-pied
• Un appartement indépendant avec accès privé
Une opportunité parfaite pour vivre en famille, pour combiner usage personnel et location longue durée, ou même comme investissement pour la location saisonnière.
Répartition des logements
Villas jumelées (plain-pied)
Chaque villa comprend :
• Salon-salle à manger, 2 chambres, 2 salles de bains, WC, Salle de sport, Débarras et cellier, Patio intérieur, Terrasse, Piscine privée, Place de parking pour 2 voitures
Surface construite :
• Villa 1 : 150,80 m²
• Villa 2 : 145,70 m²
Appartement indépendant (plain-pied)
Comprend :
• Salon-salle à manger, 2 chambres, 1 salle de bain, Débarras, Zone de circulation avec accès indépendant, Terrasse, Piscine
Surface construite : 68,50 m²
Caractéristiques urbanistiques
• Zone urbaine - à usage résidentiel
• Constructible : 25%
Un investissement aux multiples possibilités
Parfait pour développer un projet familial, un complexe de location longue durée ou un investissement attrayant orienté vers la location saisonnière.
Un projet polyvalent et avec un grand potentiel dans l'une des zones les plus prometteuses de l'île !
Contactez-nous pour plus d'informations.
Caratteristiche
Certificato energetico
Condividere
VUOI SAPERE DI PIÙ?



Terrain Costa Antigua 2833
260.000 €
Compra
Ref: 2833
Terrain avec vue sur la mer à vendre !
Situé à Costa Antigua, à seulement 15 minutes à pied du noyau touristique de Caleta de Fuste, ce magnifique terrain de 1 460 m² en zone urbaine résidentielle est proposé à la vente.
La propriété est vendue avec licence et projet approuvé pour la construction de 3 logements :
• Deux villas jumelées de plain-pied
• Un appartement indépendant avec accès privé
Une opportunité parfaite pour vivre en famille, pour combiner usage personnel et location longue durée, ou même comme investissement pour la location saisonnière.
Répartition des logements
Villas jumelées (plain-pied)
Chaque villa comprend :
• Salon-salle à manger, 2 chambres, 2 salles de bains, WC, Salle de sport, Débarras et cellier, Patio intérieur, Terrasse, Piscine privée, Place de parking pour 2 voitures
Surface construite :
• Villa 1 : 150,80 m²
• Villa 2 : 145,70 m²
Appartement indépendant (plain-pied)
Comprend :
• Salon-salle à manger, 2 chambres, 1 salle de bain, Débarras, Zone de circulation avec accès indépendant, Terrasse, Piscine
Surface construite : 68,50 m²
Caractéristiques urbanistiques
• Zone urbaine - à usage résidentiel
• Constructible : 25%
Un investissement aux multiples possibilités
Parfait pour développer un projet familial, un complexe de location longue durée ou un investissement attrayant orienté vers la location saisonnière.
Un projet polyvalent et avec un grand potentiel dans l'une des zones les plus prometteuses de l'île !
Contactez-nous pour plus d'informations.
Caractéristiques
Certificat énergétique
Partager



